EAST 51ST STREET

Proposal Team

Research / Renderings: ARCNOMA
Architect: ARCHITECTURE NOMAD PLLC

People enjoying a backyard patio with a wooden deck, outdoor seating, and lush greenery, including a dog sitting on the deck.

Renovation of 3 Units and a New Backyard Area.

ARCNOMA was requested to provide new finishes for three residential units and a design for the backyard while mantaining within project budget.


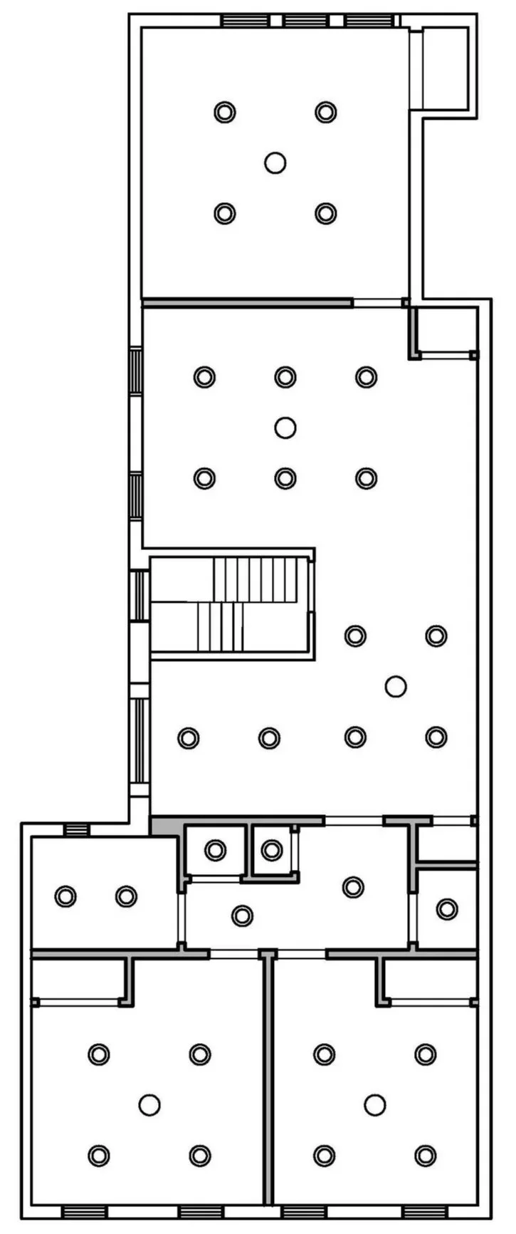
Floor plan of a building layout with multiple rooms and staircases, showing interior walls and circular fixtures or furniture arranged within each room.
Floor plan of a house with a third bedroom, living room, dining area, kitchen, two bedrooms, a bathroom, a half bath, and closets.

ARCNOMA provided options for the configuration of the Apartment Layouts. Focused on space flexibility, we opened up the Kitchen, Dining and Living Area and created a pass through space which can be furnished as preferred by residents.

Recognition of the importance lighting plays within a space, also became an exploration within the interior. We opted to include dimmer switches and combination ceiling fan / lighting. Allowing for maximum flexibility in terms of warmth, mood and illlumination.


People enjoying a backyard meal on a wooden deck with trees, plants, and a brick wall in the background.

The backyard features a new wooden fence to match the decking. Planting is proposed along the wall to soften the weight of the existing materials in and around the backyard.


People relaxing and socializing in an outdoor patio with wooden flooring, surrounded by green plants and flowers, adjacent to brick and white buildings with fire escapes.

Recognizing the scarcity of communal space within Residential Units, ARCNOMA looked to focus on flexibility. The backyard is divided into three categories social, cooking and lounging.


Image showing various bathroom and kitchen materials, including a bathroom vanity cabinet, porcelain tile, vinyl tile flooring, shower system with showerhead, bathroom wall tile, and kitchen cabinets with countertop and cabinet pull.

As with all of our finish upgrade projects we provide a mood board compiled of samples we have found in our research. We like to highlight local manufacturers in our sampling as it generally allows for quicker lead times, sustainable options and the opportunity to visit showrooms with our clients